Wondunna Haven
Closed
29 Parklands Blvd, Wondunna
Display home for sale – book an inspection today
Welcome to Wondunna Haven — a beautifully designed residence where modern comfort meets relaxed Queensland living. Thoughtfully laid out to maximise space, privacy, and lifestyle, this impressive home offers an exceptional opportunity for families seeking both functionality and elegance.
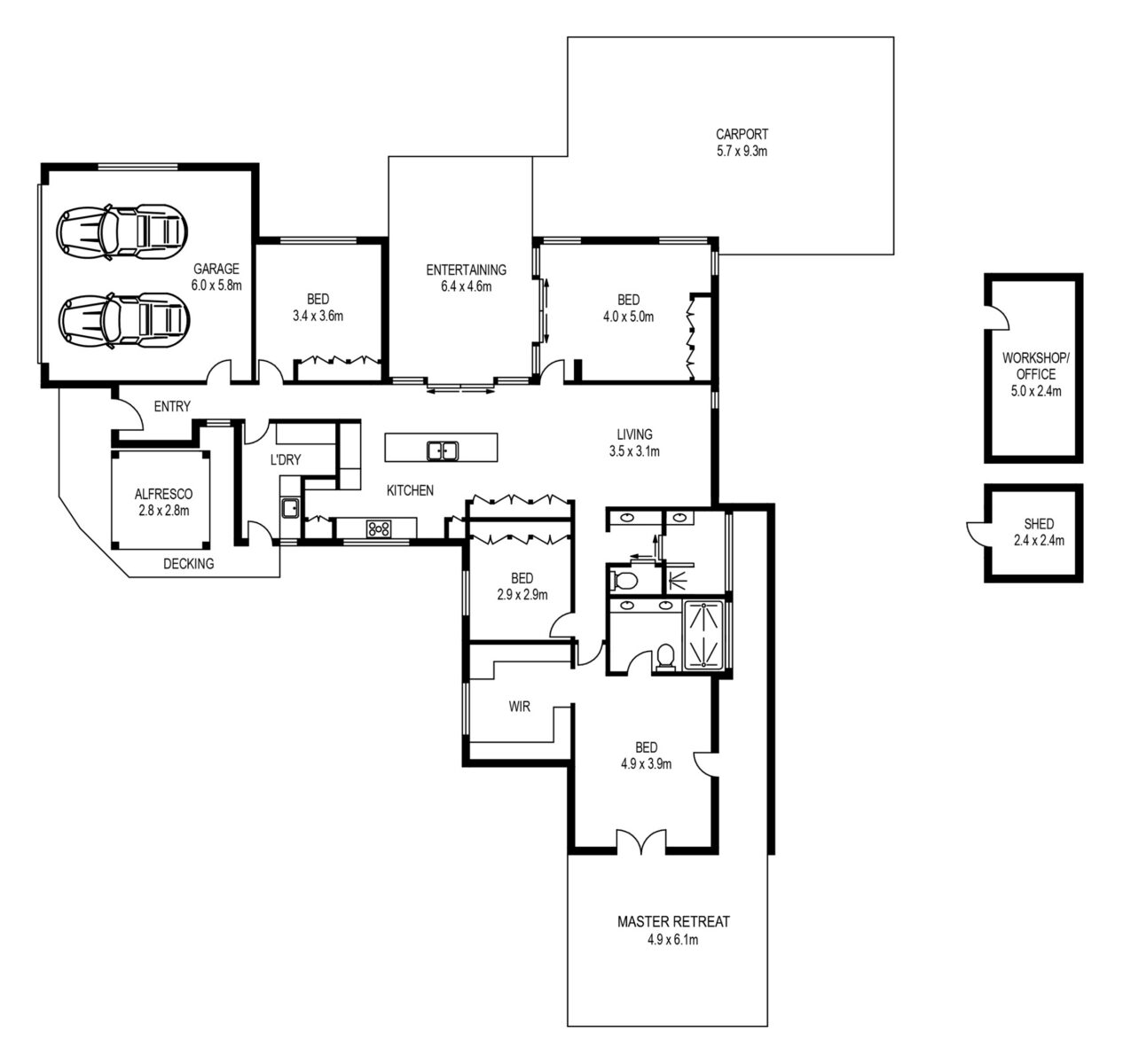
At the heart of the home lies a stylish open-plan kitchen, living, and dining area, complete with a contemporary island bench and seamless connection to the surrounding living zones. Natural light flows throughout the interior, creating a warm and inviting atmosphere perfect for both everyday living and entertaining.
The home features four generously sized bedrooms, including a private master retreat complete with walk-in robe and direct access to its own tranquil outdoor space. The remaining bedrooms are well-positioned to offer flexibility for family living, guests, or home office needs.
Designed for those who love to entertain or simply enjoy the outdoors, the property boasts three separate outdoor living spaces. From the welcoming alfresco area off the entry, to the spacious entertaining zone, and the private master retreat outdoor area, each space offers its own unique setting to relax, host guests, or enjoy peaceful moments surrounded by fresh air.
Practicality is equally impressive with a double garage, a large carport, and the added bonus of a separate workshop/office and shed, providing ample room for hobbies, storage, or working from home.
Set on a well-designed layout that blends indoor comfort with outdoor lifestyle, this residence delivers the perfect balance of modern design, versatile living spaces, and relaxed luxury.
Wondunna Haven is a home where style, space, and lifestyle come together beautifully.
Yes, site visits can be arranged at key stages of construction with a CBS Residential representative. For safety reasons, all visits must be supervised, and appropriate site safety requirements must be always followed.